BRIEF
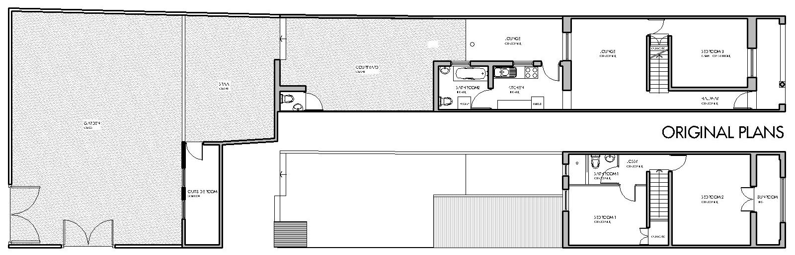
This project was to alter a small Victorian semi. The house is barely 4 meters wide and the rooms were mostly small and badly lit. The house had no connection to its relatively large garden.
WHAT WE DID
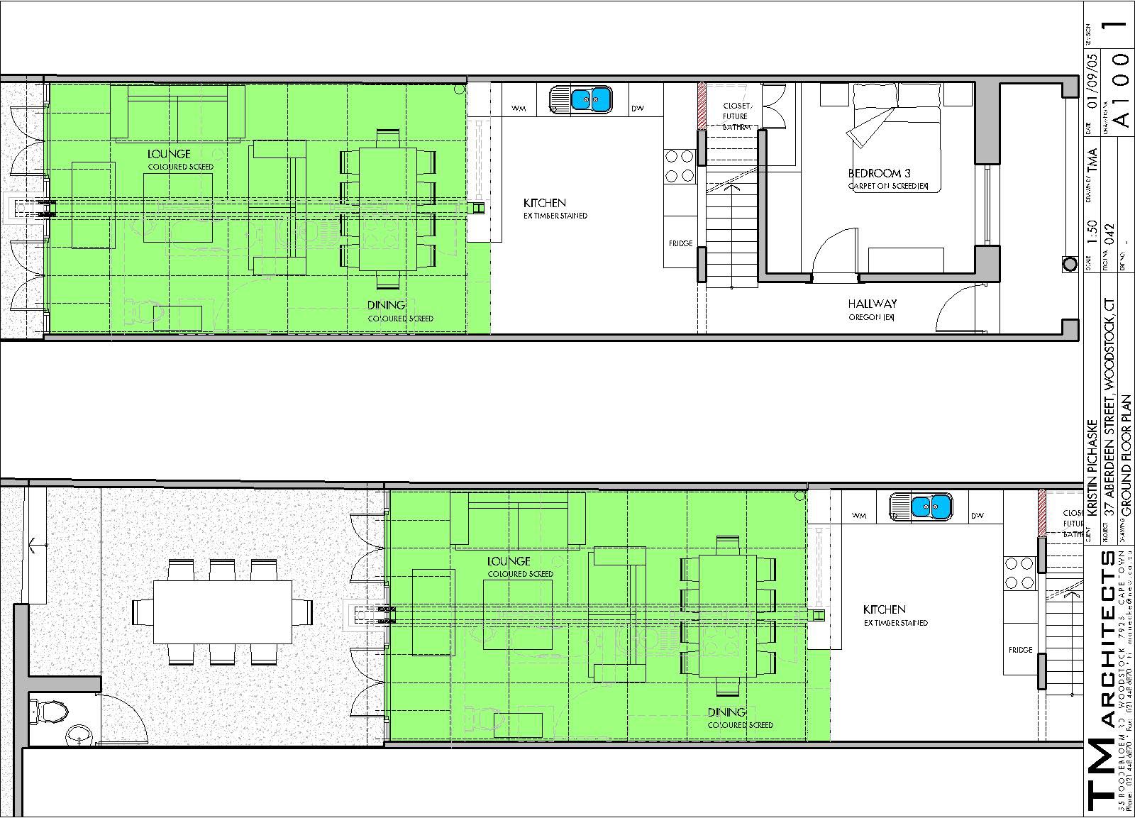
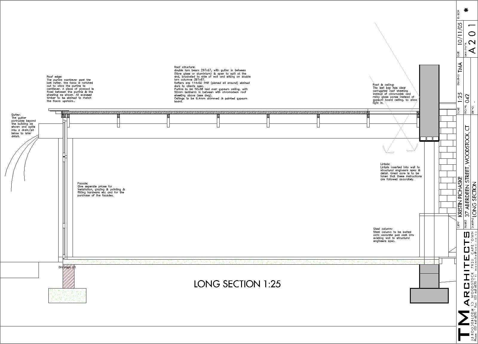
We knocked down the back wing containing the kitchen & bathroom and extended the whole width of the house back towards the garden to create a large, light and airy living space. The new addition has a full width skylight, where it meets the house, to allow light into the interior. The new kitchen was placed in the former lounge and we opened up the side of the adjacent, existing staircase to add light and make it feel more generous.
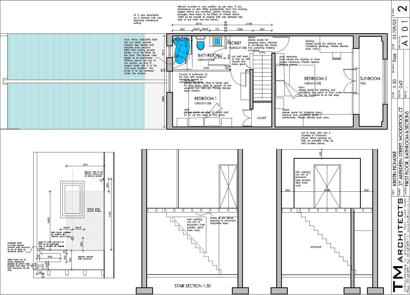
Upstairs the bathroom was enlarged, to accommodate a spa bath the owner had purchased, and refurbished. The main bedroom had an enclosed balcony. We demolished the wall separating it from the bedroom to create a more generous space. We removed the damaged ceiling, stained the old trusses and inserted insulation and a new ceiling directly under the roof, again to create more space.
STYLE
The owner had a penchant for all things Asian and this is reflected in the colours & detailing of the structure.
All the timber floors, exposed roof structure, doors & windows were sanded down & stained dark. The walls were finished with a textured, warm grey plaster and the kitchen cabinets painted in similar muted tones. The new lounge has a similarly textured coloured screed floor.
The textured look was continued in the bathrooms, by using rough slate tiles and filling of a missing piece of the original floor (where a wall had been removed) with river pebbles. In the kitchen we stripped the plaster off one of the walls revealing the old brickwork, to add texture.
The owner purchased furniture and decorative items to match.
2005 –  2006
Budget R125 000













.



Here are some photographs of the house before we started


.

Here are some photographs of the house during the build


