BRIEF
The owner of the house approached me to join the two front rooms into a big living space, improve the aesthetics of the building exterior and wanted to change the garden to be water wise and dog proof. One of her dogs kept digging up her oversized lawn and the lawn wasn’t doing to well with Cape Towns water restrictions.
WHAT WE DID
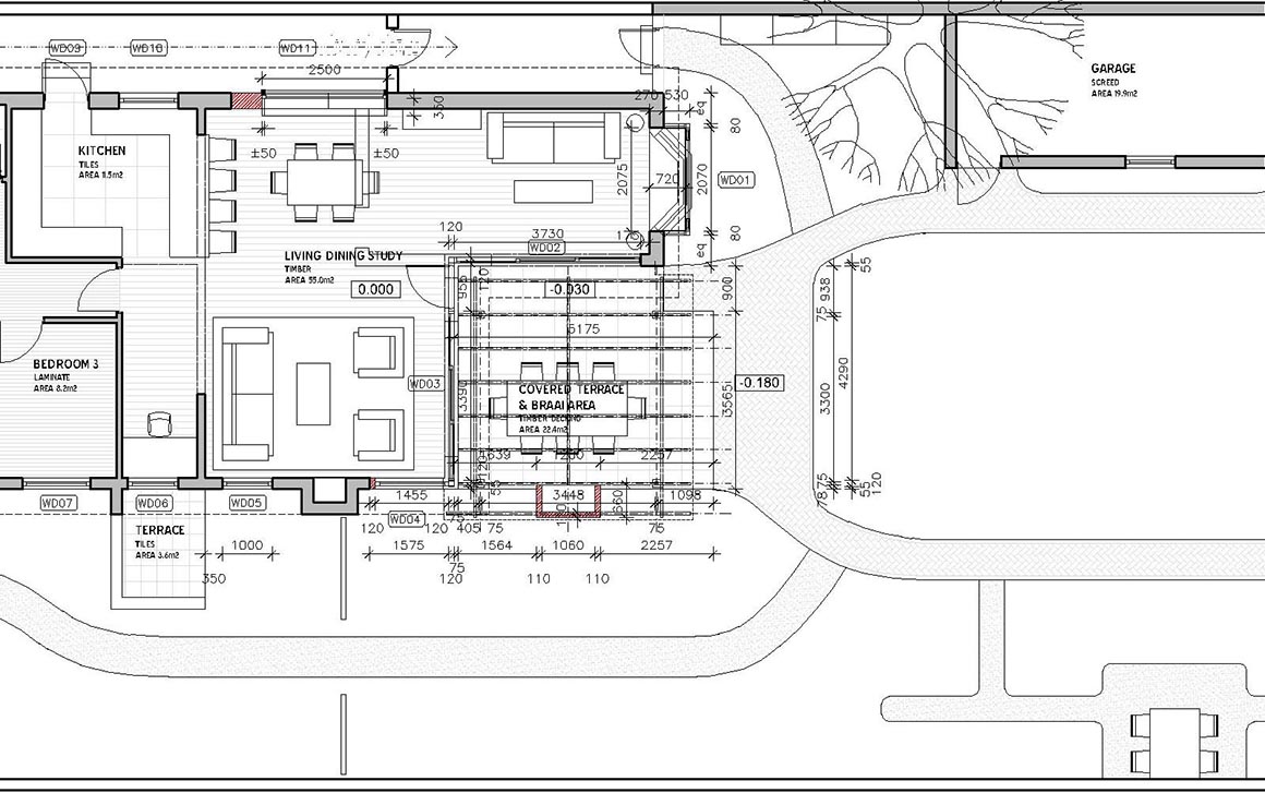
We suggested opening up the facades around the existing terrace, so that the newly joined lounges and the terrace became one large living space. The existing house has very low roof eaves and the existing terrace roof had been attached below these eaves. We designed a light, floating terrace roof to float over the main house roof, which allowed a whole lot more light into the house interior and also became the centre piece of the exterior aesthetic upgrade. The increased door and window openings blurred the line between garden and interior and gave the living space a bright, open feel.
We changed the dining room window, which allowed ‘neighbours views’ in, into a wide low window shelf, allowing light and an architectural feature, whilst maintaining mutual privacy. The old bay window was redesigned into a ‘reading day bed’, surrounded by glass and wafty ferns and provided a contemplative space to read and view the garden.
.
The terrace roof is translucent, with gridded ‘latte’ screens below, to take the focus off the corrugated roof, which collects visible dirt & leaves and isn’t easily cleaned. We added a built in ‘braai’ which acts as outdoor fireplaceand p[lanted tough (dog friendly) feature plants immediately around it, to complement the space.
We opened up an existing convoluted bathroom from the 60’s and changed it into a much more generous contemporary master bedroom en suite, lit and ventilated via skylight, in the centre of the house.
The owner was interested in ‘future proofing’ the house and we added a solar water heater, a rain water harvesting system with a grey water sprinkler for the vastly reduced lawn. All the ceilings, new windows & doors are double glazed and a new closed (read efficient) fire place was installed in place of the existing one in the lounge.
2017-2018
Construction budget ±R1 000 000













Here are some photographs of the house before we started

