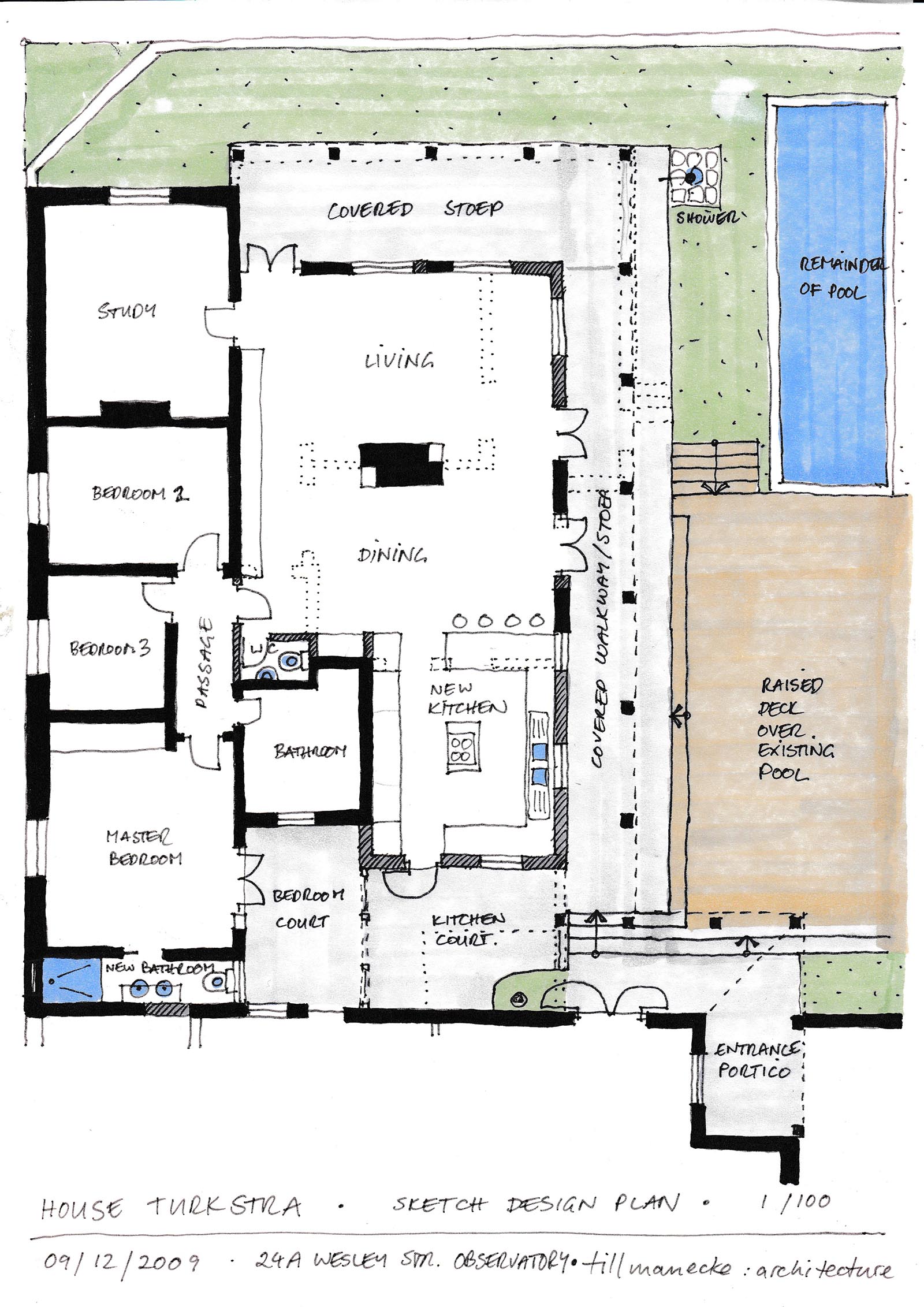
WHAT WE FOUND
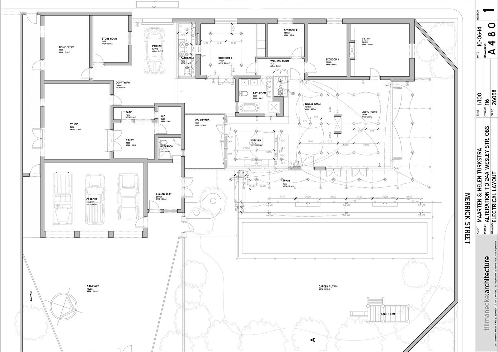
The existing house must have been an old farm building, with attached outbuildings on a large portion of land. It had been altered on a number of occasions, mostly to its detriment. A former stoep surrounding the living area had been enclosed and turned into a kitchen and playroom. This resulted in both the living & dining rooms being internal, with no direct access to natural light.
BRIEF
The brief was to increase the garden towards the driveway and create a new entrance to the main house. A new kitchen was required and the main bedroom was to get an en suite bathroom and the living space more access to light.
WHAT WE DID
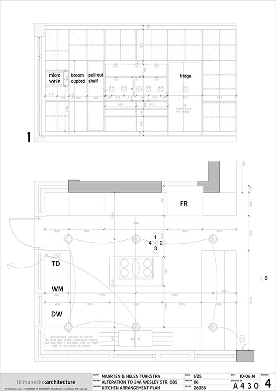
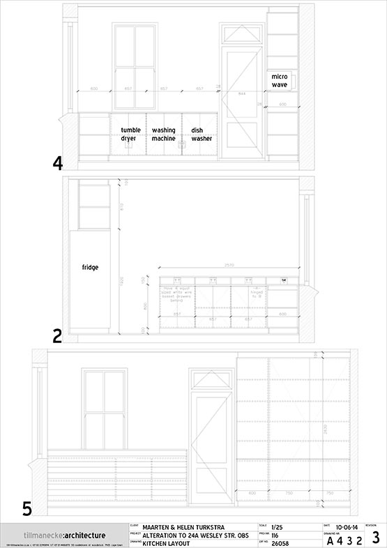
Our intention was to open up and simplify the convoluted and badly lit interior, give the house a fresh appearance and opening it up to the garden. We proposed opening up the previously enclosed stoep and expanding it along the houses garden facades. Combining the living & dining rooms with the internal passage into one big living space and adding an open kitchen on the one end. This created a large, generous, well lit living space, lined with doors and windows, onto a partially covered stoep and the pool and garden beyond. Initially the clients wanted to reduce the size of the pool in order to connnect to the garden more directly, but this idea was eventually shelved.
.
We built large ‘sitting steps’ down to the pool, adjusted the roof to cover the new kitchen and an expanded outdoor area in front of the new sliding folding doors of the lounge. We created a service yard outside the kitchen, separate from the now private master bedroom courtyard. We added a bathroom to the end of the master bedroom, with a roof window above the shower, for visual effect and added light and ventilation. The recently renovated bathroom got a new window and a guest wc was added onto one corner.
The existing timber floors were not in great shape, due to the ventilation having been cut off by the previously enclosed, surrounding stoep. The owner had a connection to a mill that supplied locally grown sugar gum floors, which were utilised throughout the living, dining and kitchen area. We endde up moving the fireplace stack slightly, as the existing brickwork was not in great shape and was required to support the adjusted roof. This also suited our desire for a slightly larger lounge and smaller dining area.
We are very happy with the results. The new roofed terrace gives the house a unified identity that speaks of ‘farm house’, whilst complementing the victorian character of the building and surrounding area. It also now, by the addition of the stairs, connects building and garden, rather than previously separating them. The living space is are large and open and yet contains extensive cupboards and storage. All of this without changing the footprint of the building substantially.
2009 – 2010
Construction budget ±R900 000























Here are some photographs of the house before we started




