CLIENT
Greenpop is an NGO that plant trees through urban greening and reforestation projects, spread environmental awareness, and activate people through green festivals and workshops across Southern Africa.
The bulk of their volunteers come from all over the world and this project was to convert their original offices into volunteer accommodation. The location is the top floor of a 50’s industrial building on the edge of Cape Towns CBD.
THE BRIEF
The NGO grew from just a couple of friends into a growing organisation and the existing facilities were a makeshift home office, with random found & donated furniture etc. The brief was to turn the existing two rooms, in an otherwise open plan space, into shared hostel type bedrooms. Further to add a bathroom, a new formal kitchen with dining area and a lounge, for the growing number of volunteers.
WHAT WE DID
The intent was to create a unified design identity and a bright, friendly & comfortable ‘home from home’ for the volunteers, during their 6 week to 3 month Cape Town stays.
.
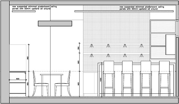
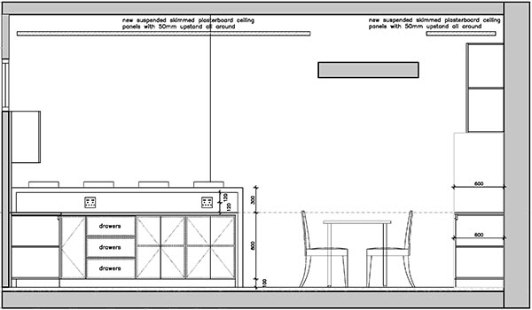
The budget was tight and nice furniture pieces were reused. The kitchen, the most expensive ‘item’ of the build, was built using standard ‘flat pack’ type carcasses, doors & open shelving combined with inexpensive hand made counters, contemporary tiles to create a modern, user friendly space with a ‘purpose made’ appearance. Existing glazed office walls were covered in funky ‘film art’ to create privacy and new ceilings & lighting were introduced to give the spaces a less industrial/more homely feel.
The position of the ‘bedrooms’ was existing. The bathroom & kitchen were placed to ensure we could tap into the existing water supply & drainage, and the dining area & lounge were designed to fit into the remaining space. Materials used were a combination of inexpensive, locally produced & environmentally friendly.
The general idea was to achieve the brief with a minimal building intervention, to reuse & recycle as much as we could, in order to keep the environmental footprint as small as possible.
October 2014 to March 2015
Budget: R250 000
















Some photos of the space before we started


