THE BRIEF
This project was for a new house for a young couple that decide to leave the rat race in Cape Town and start a new life in Greyton. The design the building was informed by the heritage requirements of the town and is based on the Cape Dutch ‘langhuis’, albeit a contemporary version there of.
WHAT WE DID
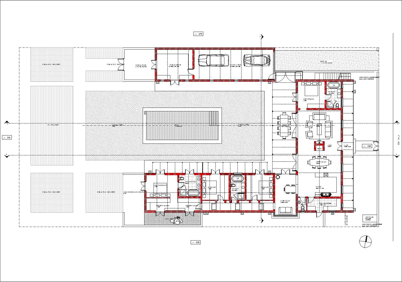
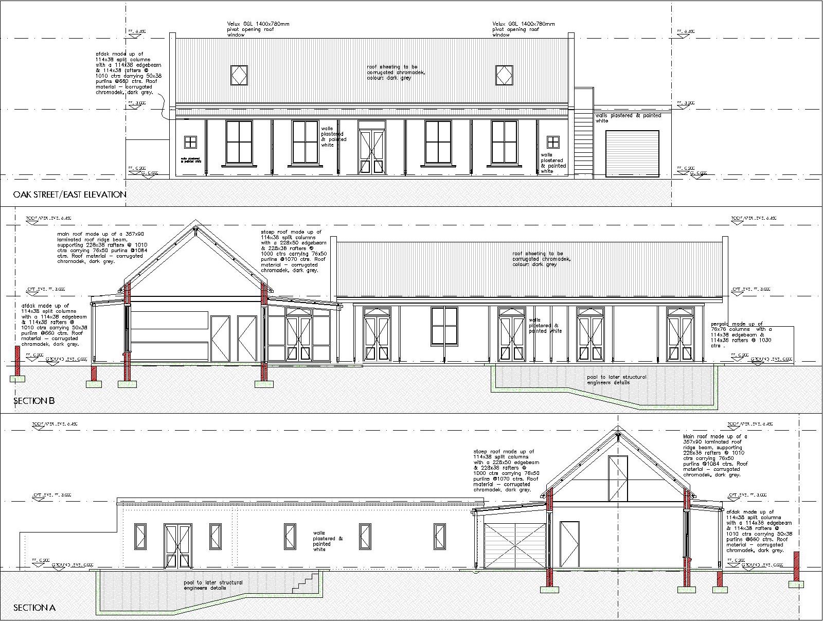
The main house with a long covered stoep (unfinished), low walls & a central entrance runs parallel to the road and creates the street frontage. A tandem garage is set back, so that the car does not dominate the street edge. This unfortunately isn’t always the case in Greyton, with double garages diluting the historical character of the town and turning it into regular suburbia, no matter how ‘quaint’ the architectural style employed.
The building is surrounded by empty lots and has a farm feel. The design was based on the idea of creating a werf; an enclosed space surrounded by the garage and the 2 building wings (of which only one has been built to date). The motivation was for the building to create its own internal views, as one had no control over what new neighbours next door might build one day.
.
The main house is a double volume barn. There is a enclosed bedroom & en suite on one end covered by a mezzanine, housing a home office. The other end has an enclosed scullery and guest wc behind an open kitchen, also covered with a mezzanine, which functions as the guest bedroom. Both mezzanines were accessible by ladders. The central, structural fireplace supports two roof ridge beams to both gable ends. This allowed us to use roof beams instead of trusses, which saved cost and made the mezzanine spaces on both ends unobstructed & fully usable. The cantilevered concrete stairs leading up the side gable to the 1st floor office was supposed to be the architectural ‘piece de resistance.’ Unfortunately the lesser skilled builder got it wrong and the treads had to be joined and the top landing eventually supported by a column. Well, I guess the idea was good…
Conceived & built 2005 – 2006.
Budget R700 000. The owner acted as project manager and through some connections, was able to get most of the building materials at a discounted rate. The house was ultimately built for less than R2500 per m2, which was quite impressive at the time.













Here is a photograph of the site before we started
